Načítavam, čakajte prosím ...
Ochrana pred bleskom a s ním súvisiacim nebezpečenstvom požiaru

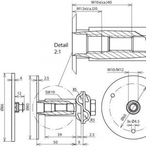
Uzemňovací bod Typ M M10/M12 nerez

m. MV-Klemme f. Rd 8-10mm St/tZn

26,51 € s DPH / ks
ks
Na objednávku
Kód: 478112
ASTM / AISI:: 316Ti / 316L / 316
Materiál č.: 1.4571 / 1.4404 / 1.4401
Materiál dosky: StSt (V4A)
Materiál MV svorky: St/tZn
Minimálne dĺžky skrutiek M10: 35 mm (thread length 40 mm)
Minimálne dĺžky skrutiek M12: 15 mm (thread length 20 mm)
Pripojovací závit: M10 / M12
Skratový prúd (striedavý 50 Hz / jednosmerný prúd): 9.3 kA
Spojovacia doska Ø: 80
Štandardné: EN 62561-1
Hmotnosť: 0,29 kg

Dokumenty na stiahnutie