Načítavam, čakajte prosím ...
Ochrana pred bleskom a s ním súvisiacim nebezpečenstvom požiaru

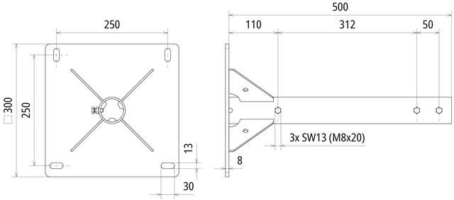
Držák podpůrné trubky s deskou pro podpůrnou trubky D50mm

Stojan podpůrné trubky s podstavcem FeZn pro uchycení podpůrných trubek Ø 50 mm. Pomocí sady redukčních adaptérů obj. č. 107 399 lze připevnit jímací tyče Ø 40 mm. Lze umístit přímo na konstrukci nebo pomocí opěrné desky s podélným otvorem.

264,91 € s DPH / ks
ks
Na objednávku
Kód: 105244
Hmotnosť: 9,5 kg

Dokumenty na stiahnutie