Načítavam, čakajte prosím ...
Ochrana pred bleskom a s ním súvisiacim nebezpečenstvom požiaru

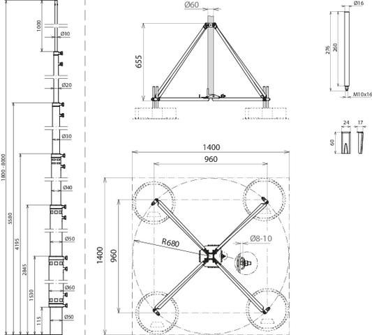
Teleskopický jímač 1.8 8.0M ČRS R680 -SET-

Teleskopická volně stojící jímací tyč se skládacím čtyřramenným nerezovým stojanem. Pro ochranu větších střešních konstrukcí, přizpůsobení sklonu střechy do max. 10°. Jímací tyče jsou dimenzovány podle Eurocode 1 (ČSN EN 1991-1-4 + DIN EN 1991-1-4/NA) pro

1 199,89 € s DPH / ks
ks
Na objednávku
Kód: 105714
Hmotnosť: 19,95 kg

Dokumenty na stiahnutie