Načítavam, čakajte prosím ...
Ochrana pred bleskom a s ním súvisiacim nebezpečenstvom požiaru

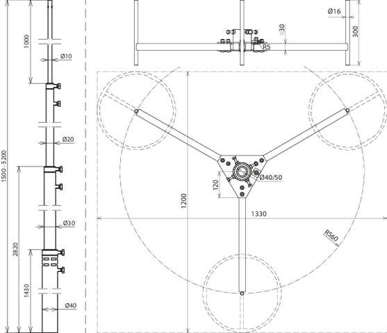
Teleskopický jímač 1.5 5.2M TRS R680 -SET-

Teleskopická volně stojící jímací tyč se skládacím tříramenným stojanem FeZn. Pro ochranu větších střešních konstrukcí, přizpůsobení sklonu střechy do max. 10°. Jímací tyče jsou dimenzovány podle Eurocode 1 (ČSN EN 1991-1-4 + DIN EN 1991-1-4/NA) pro max.

634,94 € s DPH / ks
ks
Na objednávku
Kód: 105711
Hmotnosť: 13,79 kg

Dokumenty na stiahnutie