Načítavam, čakajte prosím ...
Ochrana pred bleskom a s ním súvisiacim nebezpečenstvom požiaru

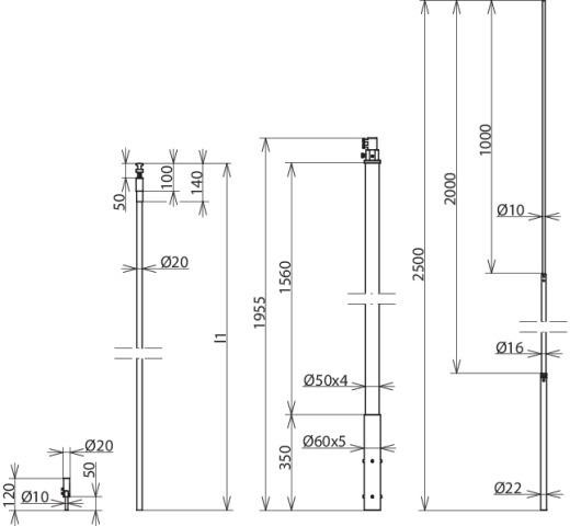
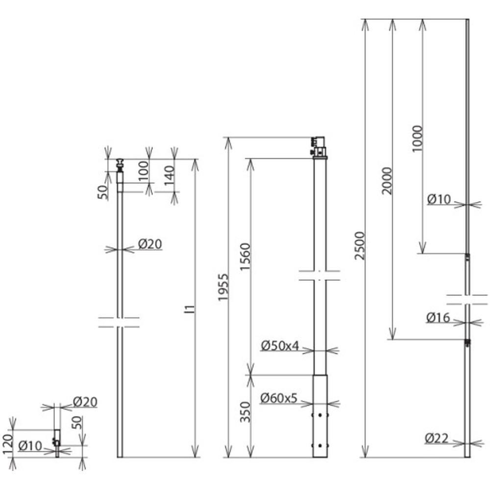
DEHNcon-H - vodič HVI v podpornej trubke s zachytávacou tyčou

L 1950mm s prijímačom 22/10 L 2500mm

Cena na vyžiadanie
Na objednávku
Kód: 819247
Charakteristika plášťa: UV-stabilised and weather resistant
Dĺžka nosnej rúrky: 1955
Dĺžka odvzdušňovacej tyče: 2500
Ekvivalentná vzdialenosť s (vo vzduchu): ≤ 75
Farba RAL: similar to 9011
Farba vodiča: black ●
Materiál izolácie: PE
Materiál nosnej rúrky: GRP / Al
Materiál odvzdušňovacej tyče: Al
Materiál plášťa: PE
Materiál spojovacích prvkov: StSt
Materiál spojovacieho prvku EB: StSt
Materiál vodiča: Cu
Max. rýchlosť nárazového vetra: 150
Minimálna dĺžka objednávky: 6
Priemer pripojenia: 10
Priemer Ø vodiča: 20
Prierez jadra: 19
Schopnosť prenosu bleskového prúdu: H1 / 150 kA
Vonkajší priemer Ø GRP: 50
Hmotnosť: 7,1 kg

Dokumenty na stiahnutie