Načítavam, čakajte prosím ...
Ochrana pred bleskom a s ním súvisiacim nebezpečenstvom požiaru

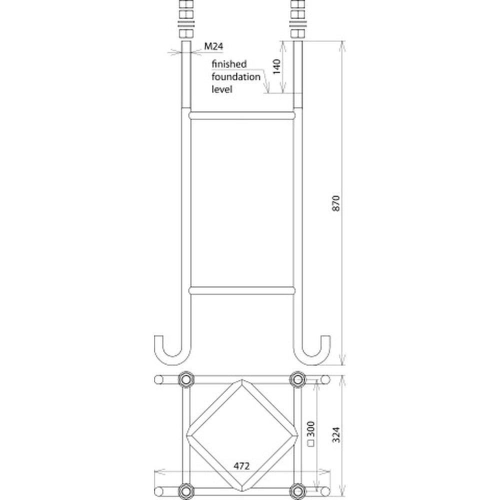
Armovací kôš pre základový betón s 4xM24 pro

Na zabetónovanie so závitovými svorníkmi, uspôsobenými pre prírubové dosky teleskopických zachytávacích stožiarov.

1 020,46 € s DPH / ks
ks
Na objednávku
Kód: 103040
Materiál: steel
Rozmery: 472 x 324 x 870
Typ pre stožiare: 13.35 to 19.35 m (Part No. 103 013 / 103 016 / 103 019)
Typ závitovej skrutky: 4x M24 (300 x 300 mm)
Hmotnosť: 22,9 kg

Dokumenty na stiahnutie