Načítavam, čakajte prosím ...
Ochrana pred bleskom a s ním súvisiacim nebezpečenstvom požiaru

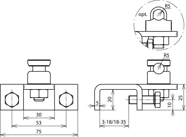
Pripojovacia svorka vodorovná, FeZn

pre profily 3-18mm, so svorkou KS

7,51 € s DPH / ks
ks
Na objednávku
Kód: 372220
Materiál skrutky/matice: StSt
Materiál svorky: St/tZn
Rozsah upínania: 3-18
Rozsah upnutia Rd: 7-10
Schopnosť prenosu bleskového prúdu (10/350 µs): & *)
Skrutka: di M8 x 25
Štandardné: EN 62561-1
Hmotnosť: 0,29 kg

Dokumenty na stiahnutie